2056 Erweiterung Schulanlage Regelwiesen

Märstetten

Wettbewerb

2056-Visu
2056-Ostfassade
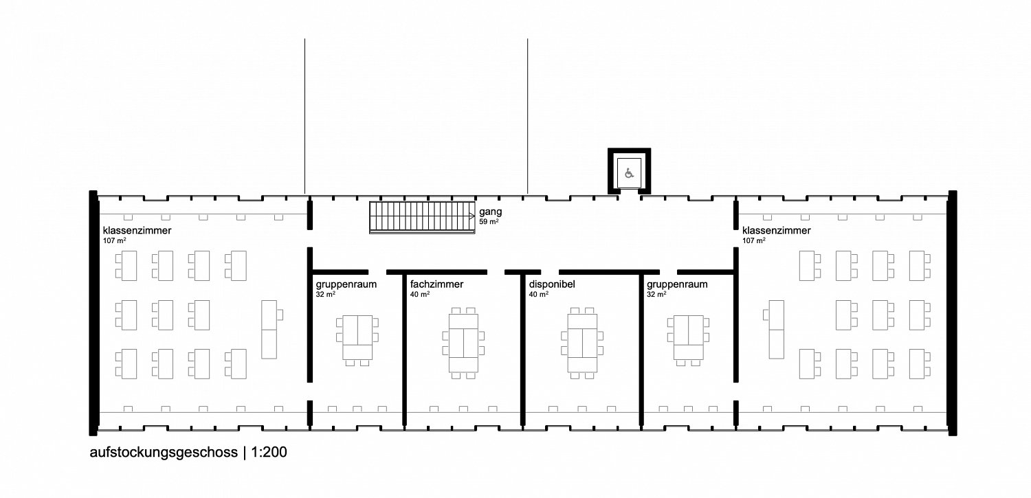
2056-Aufstockungsgeschoss


Frauenfeld

STAUFFACHER AEMISEGGER architekten gmbh

Laubgasse 59 · Postfach 272 · 8501 Frauenfeld

Telefon 052 723 29 99

Triboltingen

STAUFFACHER AEMISEGGER architekten gmbh

Hauptstrasse 54 · 8273 Triboltingen

Telefon 071 669 32 32